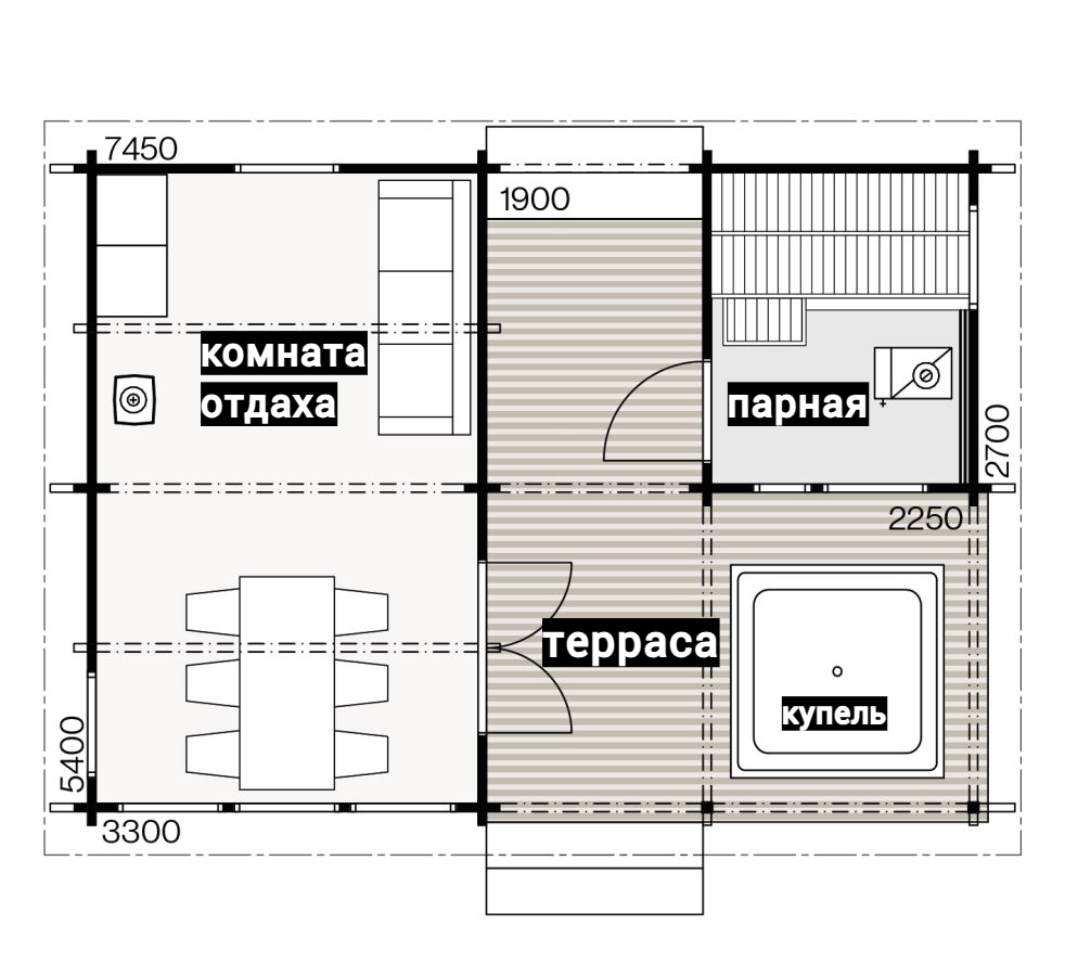
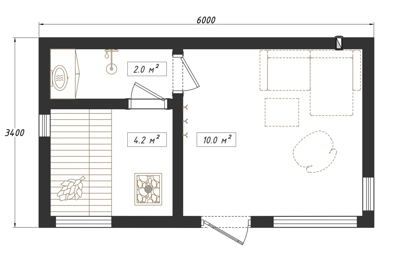
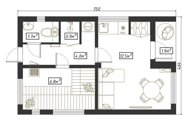
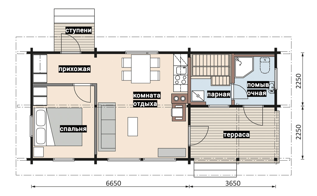
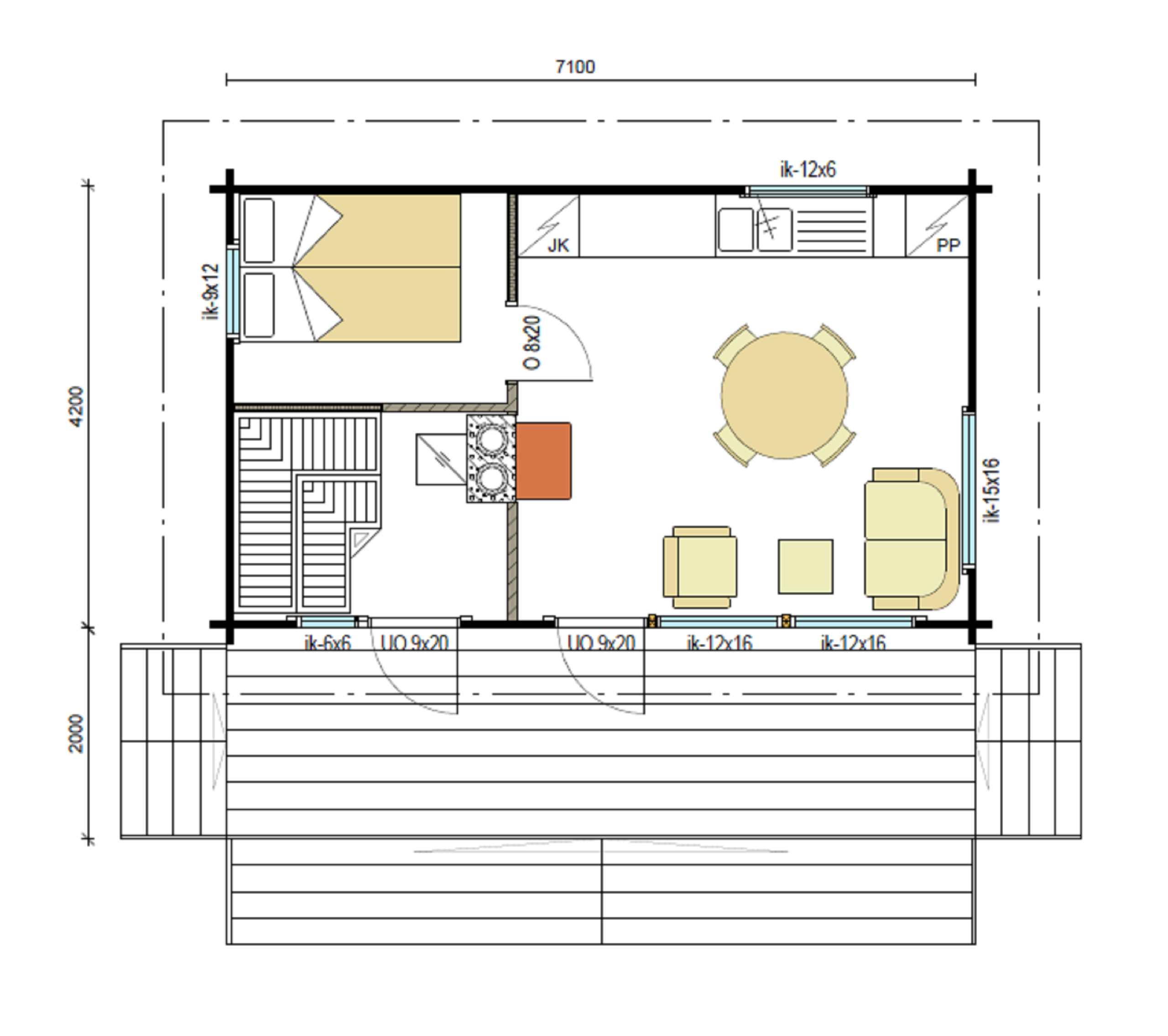
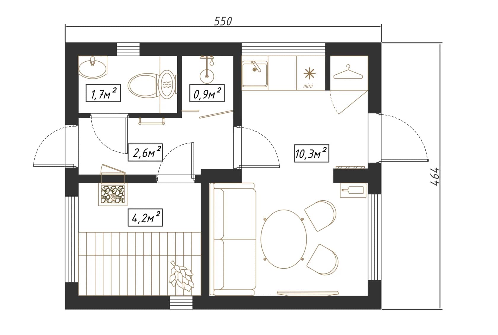
01. Стены, пол, крыша:
Стены:
Выполнены из клееного бруса на выбор: 80/140/160/200 мм
Материал бруса: ель камерной сушки 8-12% влажности
Метод соединения угла: в чашу
Крепеж: пружинный узел для бруса
Полы:
Сухая строганая доска камерной сушки 8-12% влажности, обработанная огнебиозащитой
Утеплитель Knauf Nord с перекрестной укладкой 200 мм
Снаружи супердиффузионная трехслойная мембрана
Внутри пароизоляция и отражающая фольга для бань и саун
Сетка от грызунов
Кровля:
Сухая строганая доска камерной сушки 8-12% влажности, обработанная огнебиозащитой
Утеплитель Knauf Nord с перекрестной укладкой 150 мм
Снаружи супердиффузионная трехслойная мембрана
Внутри пароизоляция и отражающая фольга для бань и саун
Металлочерепица или мягкая кровля
Выполнены из клееного бруса на выбор: 80/140/160/200 мм
Материал бруса: ель камерной сушки 8-12% влажности
Метод соединения угла: в чашу
Крепеж: пружинный узел для бруса
Полы:
Сухая строганая доска камерной сушки 8-12% влажности, обработанная огнебиозащитой
Утеплитель Knauf Nord с перекрестной укладкой 200 мм
Снаружи супердиффузионная трехслойная мембрана
Внутри пароизоляция и отражающая фольга для бань и саун
Сетка от грызунов
Кровля:
Сухая строганая доска камерной сушки 8-12% влажности, обработанная огнебиозащитой
Утеплитель Knauf Nord с перекрестной укладкой 150 мм
Снаружи супердиффузионная трехслойная мембрана
Внутри пароизоляция и отражающая фольга для бань и саун
Металлочерепица или мягкая кровля